3D Laser Scanning for Kitchen Remodeling: Precision in Every Detail

Renovating a kitchen—especially in an older home—can be a complex task without access to reliable floor plans. That’s where 3D laser scanning for kitchen remodeling becomes a game-changer. In this project, our team at Ringstadhavna successfully leveraged high-precision scanning technology to provide the homeowner and their design team with a complete and accurate digital representation of the existing kitchen.

The Challenge:
Remodeling Without a Floor Plan

The homeowner wanted to update their aging kitchen, but there were no reliable blueprints or measurements available. Traditional measuring methods could not ensure the accuracy needed for a seamless kitchen redesign. Our solution? Advanced 3D laser scanning.

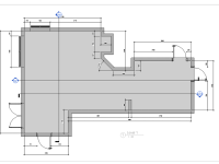
Our Solution: 3D Laser Scanning and Modeling

Using state-of-the-art equipment, we conducted a full scan of the kitchen space, capturing every surface—from walls and floors to windows, doors, and existing fixtures. The resulting 3D model provided a precise visual and dimensional representation of the kitchen.

With this data, we generated:

  • Accurate floor plans
  • Detailed elevation drawings
  • Digital documentation for collaboration

These assets were delivered directly to the kitchen design company, streamlining their process and eliminating guesswork.

Why Use 3D Laser Scanning for Kitchen Renovation?

1. Accurate Kitchen Measurements

Precise data eliminates costly errors. With scanning, every millimeter counts, and that matters in tight kitchen layouts.

2. Clear Communication Between Stakeholders

The detailed 3D models made it easy for the homeowner, designers, and contractors to visualize and discuss every detail of the project.

3. Reduced Costs and Faster Turnaround

Accurate planning helped avoid delays, reduce material waste, and speed up the renovation timeline—saving both time and money.

Learn more about our 3D scanning services and how they can simplify your next renovation.

Client Satisfaction: A Kitchen That Fits Like a Glove

Thanks to 3D scanning, the final design perfectly fit the space, matched the homeowner’s expectations, and reflected the layout envisioned by the kitchen design team. This project highlights how modern technology can enhance traditional remodeling workflows.

Want Similar Results? Contact Us Today

At Ringstadhavna, we specialize in delivering cutting-edge 3D scanning services that support construction, renovation, and design projects across Norway and beyond. If you’re planning a kitchen upgrade or a more extensive remodel, we’re here to help.

Explore more project success stories

Get in touch with our team to discuss your next project.

In Summary:

3D laser scanning is not just a trend—it’s the future of efficient, error-free kitchen remodeling. Whether you’re a homeowner, designer, or contractor, this technology helps you save time, reduce cost, and get better results.

For professional and reliable 3D laser scanning for kitchen remodeling, trust the experts at Ringstadhavna.

Scroll to Top